Житловий комплекс «Весняний»
м. Винники
Комфортний житловий комплекс «Весняний» з закритим від авто двором. Розташований у затишному місці неподалік від Львова – на вул. Кільцевій, 17А (м. Винники, Львівська область). Підземний паркінг, висока якість забудови та індивідуальне опалення – це переваги купити квартиру і стати щасливими власниками!
Технічні характеристики
Розташування та інфраструктура
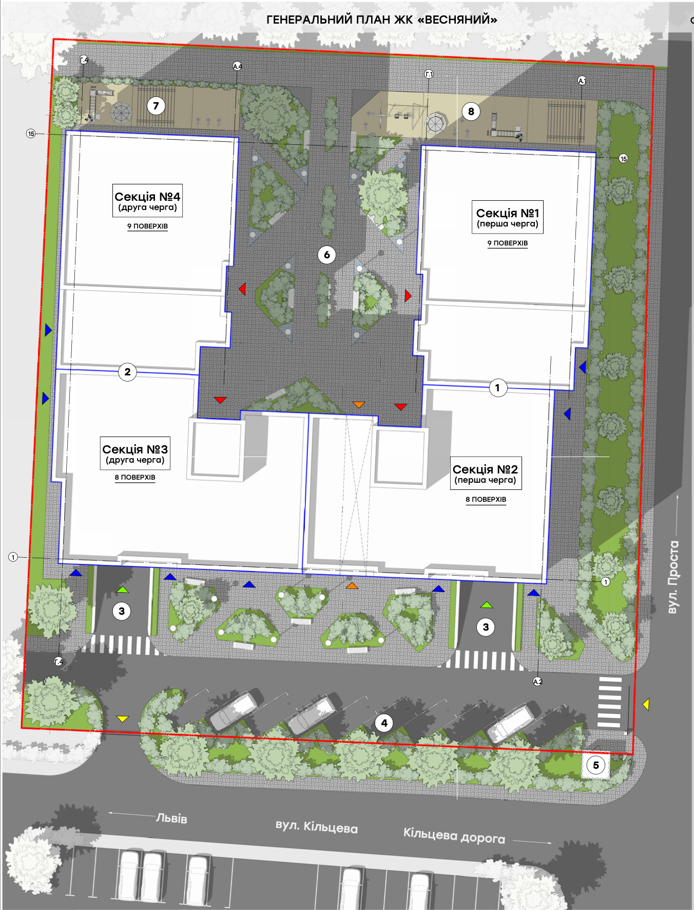
ЖК “Весняний” у Винниках - це безпечний тихий двір без авто.
Територія комплексу закрита та обладнана системою безпеки.
На території двору передбачено дитячий майданчик, зона загального відпочинку, спортивна зона.
Окрему увагу ми приділили першим поверхам, на яких знаходиться комерційна нерухомість. На території жилого комплексу буде знаходитись центр раннього дитячого розвитку, продуктовий супермаркет, кавʼярня, зоомагазин, хімчистка, салон краси, студія йоги та квітковий магазин. Це забезпечить вам зручність у всьому необхідному, не виходячі за межі житлового комплексу.
Часті питання
Ми підготували для вас чек-лист, завдяки якому ви легко можете оцінити надійність та комфортність потенційного житла.
В нашому чек-листі 16 пунктів, ось декілька з них. Наявність:
- всіх необхідних документів з повним переліком;
- детального плану забудови та території;
- дозволу на виконання будівельних робіт;
Такі чек-листи ми надаємо безкоштовно на консультаціях з розʼясненням.
Щоб отримати такий чек-лист – звертайтесь до вашого персонального менеджера або до відділу продажів за телефоном 068 037 77 70.
Щоб зробити процедуру купівлі житла максимально швидкою та зручною, дотримуйтесь інструкції:
- Визначтесь з вимогами до площі, кількості кімнат і планування. Перегляньте доступні варіанти квартир на нашому сайті або запросіть планування в менеджера відділу продажів, зателефонувавши за номером 068 037 77 70.
- Зв’яжіться з менеджером, щоб забронювати зручну для вас дату перегляду квартир.
- Зарезервуйте квартиру — це можна зробити безпосередньо під час перегляду чи пізніше. Вам знадобляться копії паспорта та ідентифікаційного коду (РНОКПП).
- Визначтесь зі способом оплати — за необхідності ви можете подати заявку на іпотечне кредитування чи участь у програмі «єОселя». Наші менеджери нададуть вам усі необхідні консультації.
- Підпишіть договір купівлі нерухомості. Вам необхідно приїхати у відділ продажів у визначений час, маючи при собі оригінали паспорта та РНОКПП.
- Здійсніть оплату згідно з умовами договору.
- Якщо фактична площа квартири перевищуватиме проєктну, після введення будинку в експлуатацію вам необхідно буде здійснити додаткову оплату за перерахунком.
- Після оплати повної вартості житла підпишіть акт прийняття-передачі квартири та отримайте документи — технічний паспорт і довідку про 100% оплату.
- Зареєструйте право власності.
Якщо у вас виникають труднощі на певному етапі, звертайтесь до нашого відділу продажів. Ми проконсультуємо вас, підкажемо наступні кроки та допоможемо підготувати документи.
- Підтримка персонального менеджера з відділу продажів.
- Супровід юридичної реєстрації майнових прав.
- Під’єднання інженерних систем — електрика, вода, каналізації, газ, інтернет від провайдера Astra.
- Допомога в оформленні особистих рахунків у комунальних службах — Львівобленерго, Львівводоканал, Львівгаз.
- Післяпродажний супровід.
- Послуги управительської компанії.
Проєктом передбачено два пускових об’єкта житлового комплексу:
- Перший пусковий— отримано сертифікат готовності.
- Другий пусковий — триває активна стадія будівельних робіт. Завершується мурування зовнішніх перегородок із керамічних блоків та внутрішніх з цегли.
Плановий термін введення в експлуатацію — IV квартал 2026 року.
Ми пропонуємо вигідне розтермінування на квартири 2 пускового від забудовника без здорожчання ціни.
Умови розтермінування:
- перший внесок — 30% загальної суми;
- залишок суми вноситься рівними сумами щомісяця або щокварталу;
- термін остаточної виплати — 4 квартал 2026 року;
- пропозиція поширюється на квартири у другому пусковому житлового комплексу;
Уточнюйте деталі акційних пропозицій у персонального менеджера чи у відділі продажів за телефоном 068 037 77 70.
Дотримуючись фінансової дисципліни, всі оплати за покупку нерухомості від забудовника «Будтранс Девелопмент» - лише у національній валюті. Оплата здійснюється на розрахунковий рахунок «Будтранс Девелопмент», що вказаний в Договорі купівлі-продажу майнових прав.
Щоб купити квартиру у ЖК «Весняний» Вам потрібно мати з собою паспорт та ідентифікаційний код.
З додаткових платежів – лише оплата при реєстрації права власності у держреєстратора за видачу свідоцтва.
Так, перепланування доступне. Звертайтесь за деталями до вашого персонального менеджера або до відділу продажів за телефоном 068 037 77 70
Здійснити оплату згідно перерахунку по площі, у разі якщо фактична площа квартири відрізняється від проектної.
За умови повної оплати вартості квартири:
- Підписати Акт прийому-передачі квартири
- Отримати Технічний паспорт на квартиру
- Отримати Довідку про 100% оплату
Зареєструвати право власності.
Житловий комплекс «Весняний» має акредитацію для участі у державній програмі доступного іпотечного кредитування «єОселя».
Офіційним фінансовим партнером для 1-го пускового є ПриватБанк. Для квартири у 2-му пусковому можна отримати кредитування від Sky Bank.
Наразі доступні два варіанти кредитування:
- з пільговою ставкою 3% (4% державної компенсації, фактична ставка 6% з 11-го року виплати) - для військовослужбовців, правоохоронців і членів їхніх сімей, медиків, педагогів і науковців, працевлаштованих в установах державної чи комунальної форми власності.
- зі ставкою 7% (фактична ставка 10% з 11-го року виплати) - для ветеранів, ВПО, членів їхніх сімей першого ступеня спорідненості, а також інших громадян, що не мають власного житла або мають житлову площу меншу за 52,5 м2 на одну особу + 21 м2
Додаткові умови:
- перший внесок - від 20% або від 10% для осіб до 25 років;
- термін кредитування - до 20 років;
- вік позичальника - не менше 18 років і не більше 70 років на момент виплати.
Зверніться до нашого відділу продажів за телефоном 068 037 77 70, щоб зарезервувати квартиру за своїми потребами.
Забудовник «Будтранс Девелопмент» завжди розглядає всі запити своїх клієнтів в індивідуальному порядку, враховуючи побажання, потреби чи спеціальні умови на оплату кожного майбутнього мешканця ЖК «Весняний».
Якщо у вас є певний запит - будь ласка звертайтесь до вашого персонального менеджера за номером телефону: 068 037 77 70
Так, звісно! За попередньо узгодженим часом, інвестор з його запрошеною командою можуть приїхати на будівництво ЖК «Весняного», де їх зустріне персональний менеджер та проведе до квартири. У квартирі можна зробити всі необхідні заміри. За потреби, можна й повторно приїжджати для додаткових замірів.
ЖК «Весняний» - це про турботу до людей та до їх домашніх улюбленців. Комфортні умови проживання - це не лише про власну квартиру. А й про житловий комплекс загалом, принаймні забудовник «Будтранс Девелопмент» в цьому переконаний і дотримується такої думки. Спеціальні лапкомийки - це окремо виділені місця у вхідній групі, де після прогулянки з вашим чотирилапим другом ви зможете помити та витерти його і вже чистими піти додому.
ЖК «Весняний» здає квартири інвесторам в чистовій стяжці високої якості, вартість якої вже входить в ціну м2, окремо сплачувати не потрібно. Відмовлятись також не має потреби, оскільки наші покупці відзначають це як значну перевагу.
Всі технічні характеристики ми озвучуємо на зустрічі в нашому офісі. Запрошуємо до нас за попереднім записом за номером 068 037 77 70
Так, звісно потужність залежить від площі квартири, адже для більших квартир потрібна й більше потужність, через більшу кількість техніки. Заведена потужність у ЖК «Весняний» починається від 5,5 кВт.
Всі технічні характеристики ми озвучуємо на зустрічі в нашому офісі. Запрошуємо до нас за попереднім записом за номером 068 037 77 70
- 100% передплата — найпростіший, найшвидший і найнадійніший спосіб купівлі власного житла.
- Розтермінування без здорожчання — оплата частинами від забудовника. Перший внесок — від 30%, залишок суми вноситься рівними платежами щомісяця чи щокварталу до 4 кварталу 2026 року.
Так, ЖК «Весняний» — один із небагатьох житлових комплексів із власними підземними паркінгами у передмісті Львова. Його паркінг відповідає сучасним стандартам пожежної безпеки, вентиляції та освітлення. Завдяки Wi-Fi та генератору він слугує комфортним і безпечним місцем укриття під час повітряної тривоги та інших небезпек. Більше про переваги підземного паркінгу в новобудові можна дізнатися за посиланням.
- Підлога — цементно-піщана стяжка, готова до вкладання будь-якого покриття.
- Стіни та стеля — оброблені поліпшеною цементно-вапняковою штукатуркою, готові до фінішного оздоблення.
- Вікна — 6-камерний профіль для зниження рівня шуму та дотримання сучасних стандартів енергоефективності.
- Двері — металеві протиударні для гарантії вашої безпеки.
- Інженерні системи — електрика, вода, газ, опалення, вентиляція та каналізація — вже проведені до квартири.
Базовий ремонт від забудовника значно полегшує фінішне оздоблення квартири, а також монтаж усієї необхідної побутової техніки, сантехніки та електроніки.
ЖК «Весняний» пропонує одні з найкращих умов для проживання сімей з дітьми у передмісті Львова. На його території організовано:
- сучасний дитячий майданчик;
- спортивний майданчик для підлітків і дорослих;
- школа раннього розвитку дітей (1-й поверх ЖК).
У пішій доступності від житлового комплексу розташовані Винниківський лісопарк, парк «Вайнберг», спортзали, різноманітні секції та гуртки. Розвинена транспортна інфраструктура надає зручний доступ до усіх закладів та установ у центрі Львова, а також Стрийського парку та парку «Погулянка».
Так, ви можете купити комору площею 5-7 м2 на своєму поверсі або меншу комірку на першому поверсі, щоб зберігати габаритні речі. Комори продаються окремо від квартир - уточнюйте умови купівлі у вашого персонального менеджера за телефоном 068 037 77 70.
Так, ви маєте унікальну можливість купити квартиру з паркомісцем у підземному паркінгу, щоб отримати безпечні умови зберігання авто та зручний доступ до транспортного засобу. Замовляйте паркомісце просто зараз, адже пропозиція обмежена! Телефонуйте за номером 068 037 77 70, щоб уточнити ціни та інші умови купівлі.
Перший пусковий будівництва введена в експлуатацію.
Актуальні ціни на квартири станом на 12.12.2025:
- 1-кімнатні - наразі всі продано.
- 2-кімнатні - 1050 $/м2
- 3-кімнатні - наразі всі продано.
Уточнюйте наявність квартир та умови придбання у вашого персонального менеджера 068 037 77 70.
Актуальна ціна на квартири від 12.12.2025:
- 1-кімнатні - 950 $/м2
- 2-кімнатні - 900 $/м2
- Спеціальна ціна на 3-кімнатні - 855 $/м2
- 2-кімнатні - 900 $/м2
У вартість квартири включено: якісні, вогнетривкі вхідні двері з покращеним замком, базовий ремонт та заведена електрика від загальної електрощитової в квартиру.
Запишіться на перегляд вже сьогодні - дзвоніть за номером 068 037 77 70 або залишайте заявку на сайті - і ми підберемо найкращий варіант саме для вас.
Обмежена кількість квартир свідчить про високу ліквідність проєкту — більшість планувань бронюють ще на етапі будівництва. У ЖК «Весняний» зараз в наявності якісні продумані планування, що підходять як для життя, так і для інвестиції.
Зверніться до нашого відділу продажів за телефоном 068 037 77 70, щоб зарезервувати квартиру за своїми потребами.
Так. У нас є гнучкі варіанти фінансування:
- розтермінування від забудовника з мінімальним першим внеском;
- можливість придбати житло за програмою «єОселя».
Зателефонуйте персональному менеджеру за номером 068 037 77 70 і він підбере варіант саме під ваш бюджет — ми знайдемо рішення, щоб покупка була для вас фінансово-комфортною.
Звичайно. Але щоб підібрати справді релевантні варіанти, нам важливо знати ваші пріоритети: площу, планування, бюджет або етап будівництва. Після уточнення деталей ми надсилаємо вже конкретні пропозиції, які відповідають вашому запиту.
Телефонуйте вашому персональному менеджеру для уточення запиту 068 037 77 70.







